Atendimento Whatsapp WEB
 

TERRENO COM PROJETO APROVADO EM GRAMADO! Cód. V2365

Vivendas do Arvoredo - Gramado / RS
R$ 550.000,00
  • Área Total:487,39 m²
  • Perfil: Novo

Área Total do Terreno 487,39m²

Frente: 12,00m

  • Árvores Frutíferas
  • Energia Elétrica
  • Entrada de Luz
  • Pavimentação
  • Rede Esgoto
  • Rua c/ Pavimentação

Excelente terreno no Vivendas do Arvoredo  em Gramado.

 

Localizado em um dos melhores loteamentos de Gramado, sendo um lugar calmo e tranquilo, em meio a natureza, de fácil acesso, pronto para construir!

 

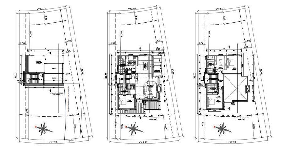
Terreno com projeto aprovado para casa com 3 suítes.

 

Entre em contato e agende sua visita!

  LOCALIZAÇÃO - TERRENO COM PROJETO APROVADO EM GRAMADO!

Gramado / RS

IMÓVEIS SIMILARES

Usamos cookies para personalizar e melhorar a sua experiência. Ao navegar neste site, você concorda com a nossaPolítica de Privacidade